시공갤러리
디알코디의 다양한 시공 사례를 확인해보세요.
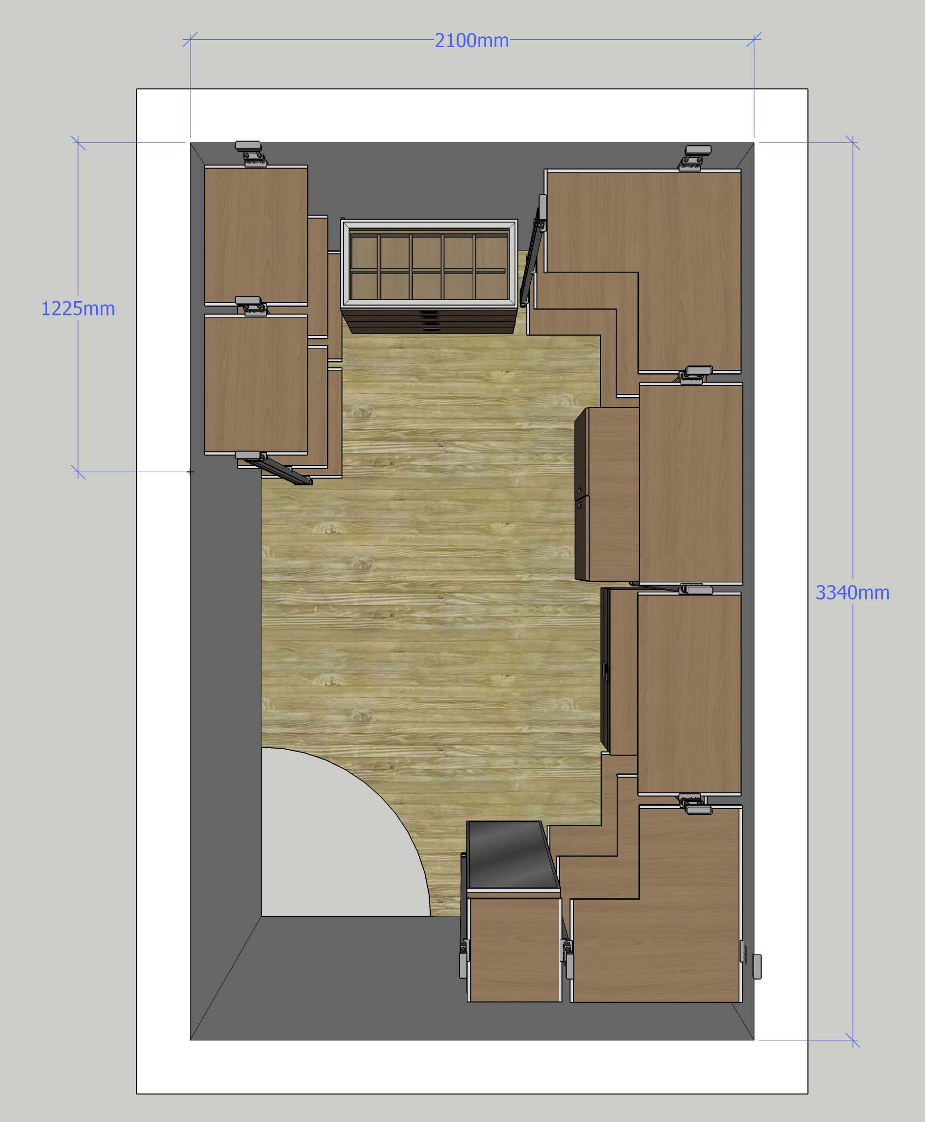
[웜그레이] 창문 밑 아일랜드장 배치 시공사례
2022.10.07
조회 4,298
색상
웜그레이
기둥색상
실버
공간형태
ㄷ자






